Эксклюзивный участок с проектом на строительство виллы класса люкс в Тейя, Барселона
Коста-дель-Маресме • Дом

Тейя

4 750 000€
Дом
вид недвижимости
6
Спальни
6
Ванные
Тейя
Расположение

Эксклюзивный участок с проектом на строительство виллы класса люкс в Тейя, Барселона

Предлагаем уникальную возможность приобрести участок на побережье Маресме в городе Тейя с утверждённым архитектурным проектом и строительной лицензией в одном из самых престижных районов побережья Маресме. Здесь вас ждут абсолютная тишина, уединение и захватывающие виды на Средиземное море.

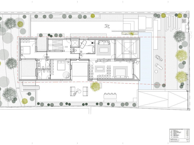
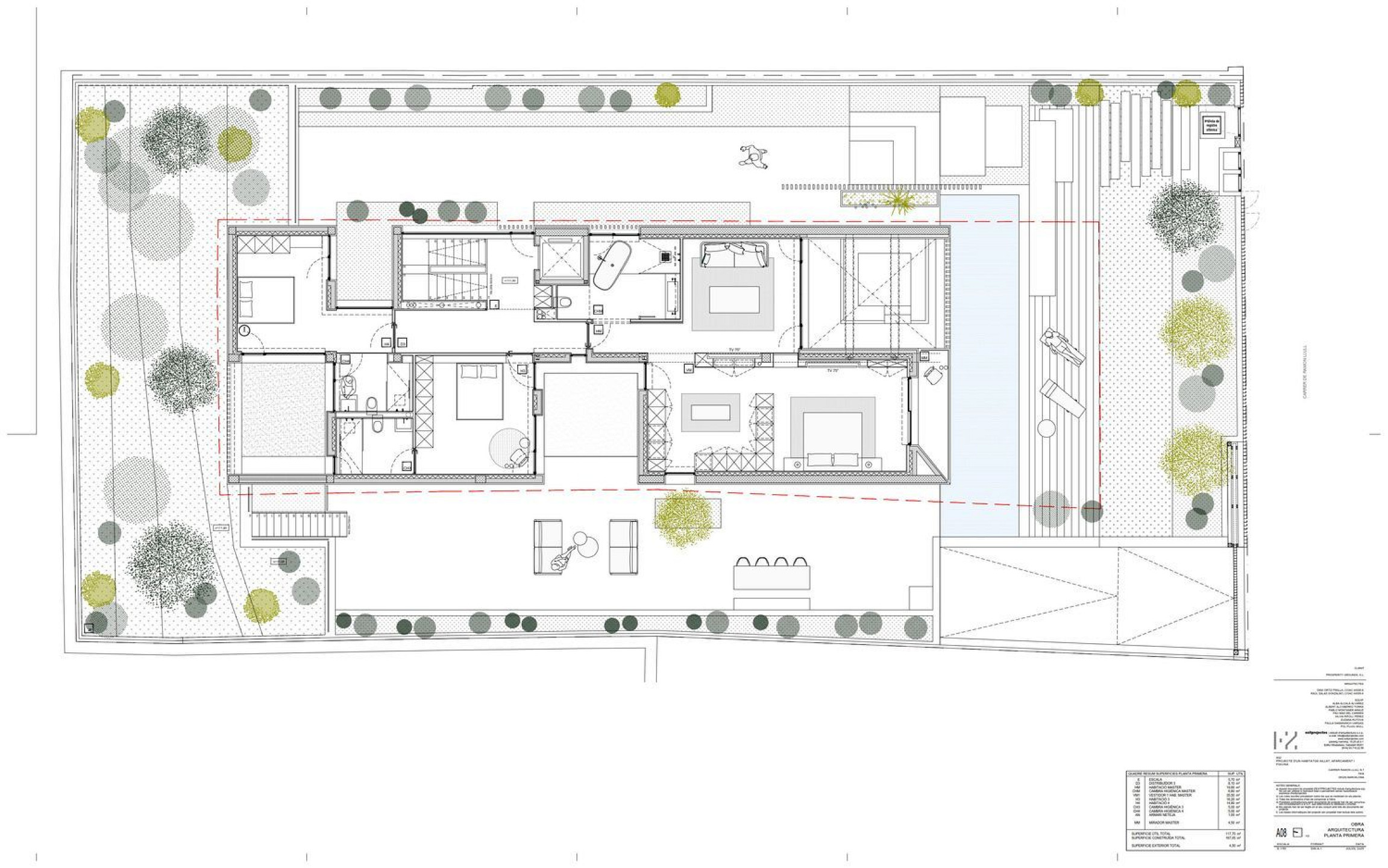
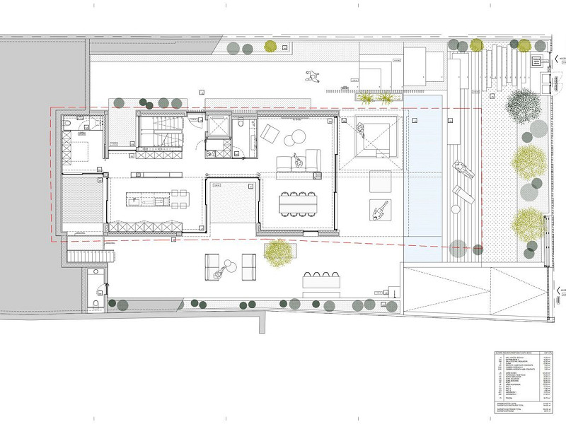
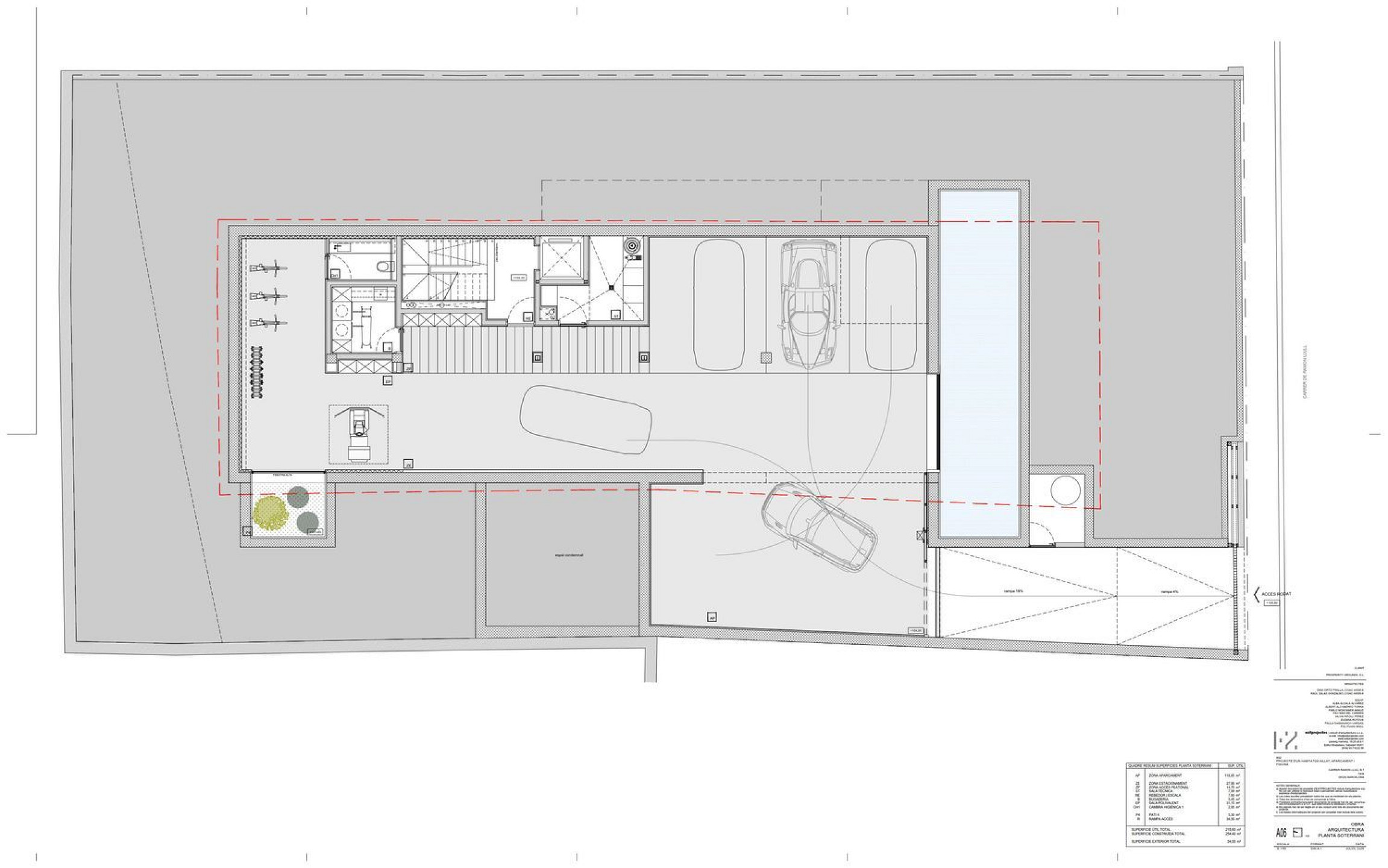
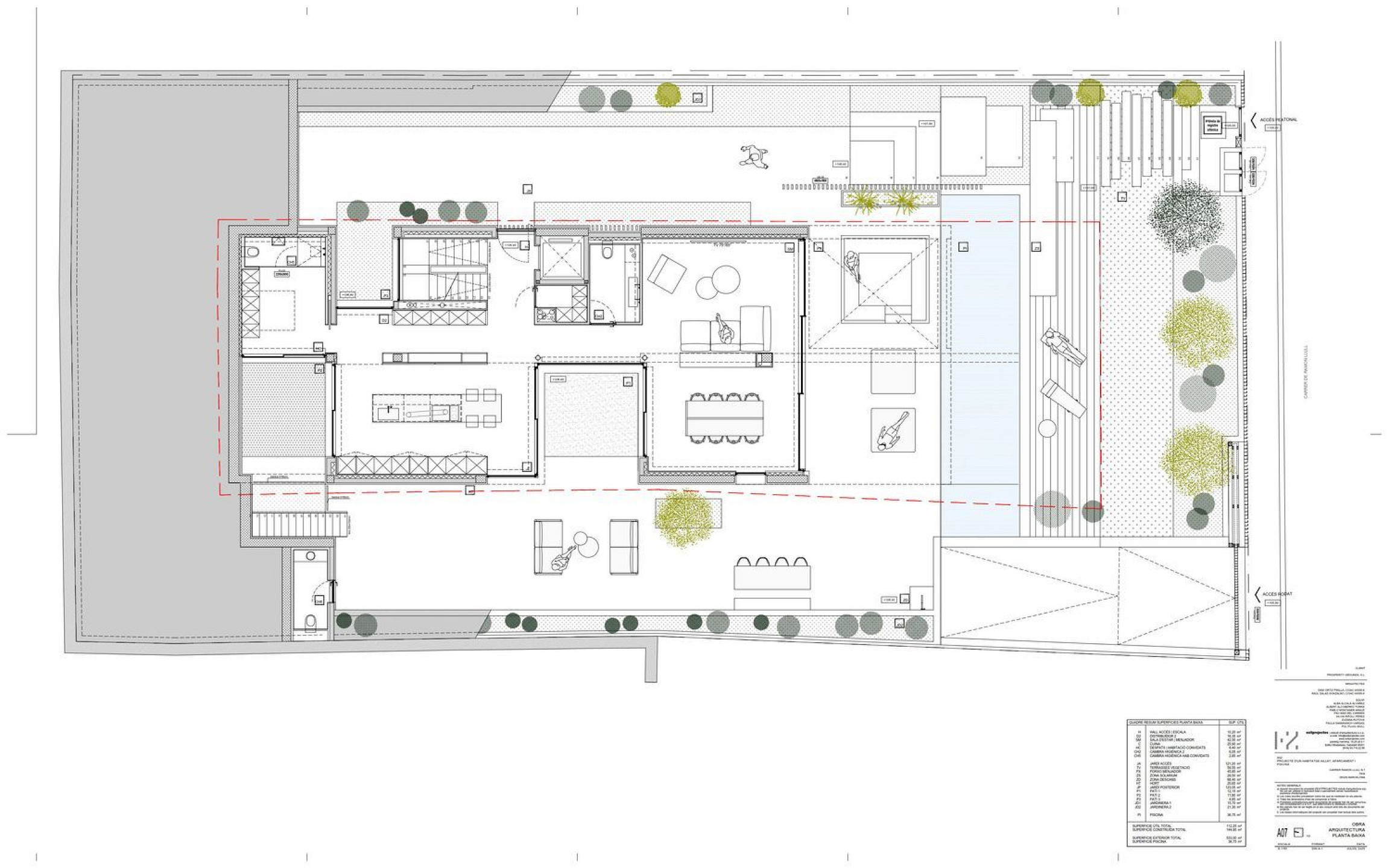
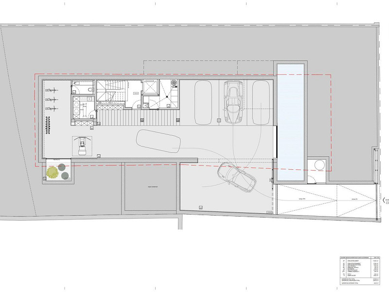
Проект предусматривает строительство современной виллы площадью 733 м² в три уровня. Просторный гараж на четыре автомобиля, сад площадью 669 м² с местной флорой и бассейном 60 м² создают атмосферу полного расслабления.

Дом будет включать шесть спален с ванными комнатами, гостевой туалет, просторную гостиную-столовую 63 м², кухню площадью 30,62 м² с техникой премиум-класса, а также английский дворик, керамогранит большого формата и изысканную отделку.

На нижнем уровне проектом предусмотрены: универсальное пространство 88 м², спортзал, винный погреб с дегустационной зоной, прачечная и отдельная зона проживания персонала. Внешняя зона дополнена уютным firepit для вечеров на свежем воздухе.

В доме установлена система климат-контроля на базе аэротермии, "умный дом" и экологичные инженерные решения. По желанию клиента возможна установка джакузи, сауны, спа-зоны, комнаты паники и современной системы безопасности.

Эта возможность идеально подойдёт тем, кто хочет построить дом своей мечты в эксклюзивной локации с полным контролем качества и деталей.

Удобства

Своя парковка
Частный бассейн
Терраса
Кондиционер
Центральное отопление

Заказать просмотр

Персональный показ объекта в удобное для вас время

Эксклюзивный сервис

01 Персональный менеджер на протяжении всей сделки
02 Юридическое сопровождение покупки
03 Помощь в получении ипотеки и оформлении документов

Похожие предложения

Дом в элитной урбанизации Супермаресме, Сант-Андреу-де-Льаванерас, Барселона

Коста-дель-Маресме

2 500 000€

Дом
Сант-Висенс-де-Монтальт
 Современная вилла рядом с гольф-клубом в Вальроманесе, Барселона

Коста-дель-Маресме

1 260 000€

Дом
Вальроманес
Элегантная вилла с панорамными видами в Сант-Андреу-де-Льаванерас, Барселона