Эксклюзивный объект смешанного назначения рядом с L’Illa Diagonal, Барселона
Провинция Барселоны • Коммерческая

Барселона

6 500 000€
Коммерческая
вид недвижимости
650 м²
Площадь
3
Спальни
Барселона
Расположение

Эксклюзивный объект смешанного назначения рядом с L’Illa Diagonal, Барселона

Уникальный актив с высоким инвестиционным потенциалом, идеально подходящий для сочетания коммерческой деятельности и частной резиденции в одном из самых престижных и динамичных районов города.

Это знаковое историческое здание 1878 года, расположенное в каталожной finca regia, сохранившее архитектурную аутентичность эпохи и представляющее собой прекрасную основу для современного редевелопмента.

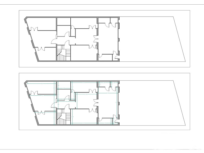
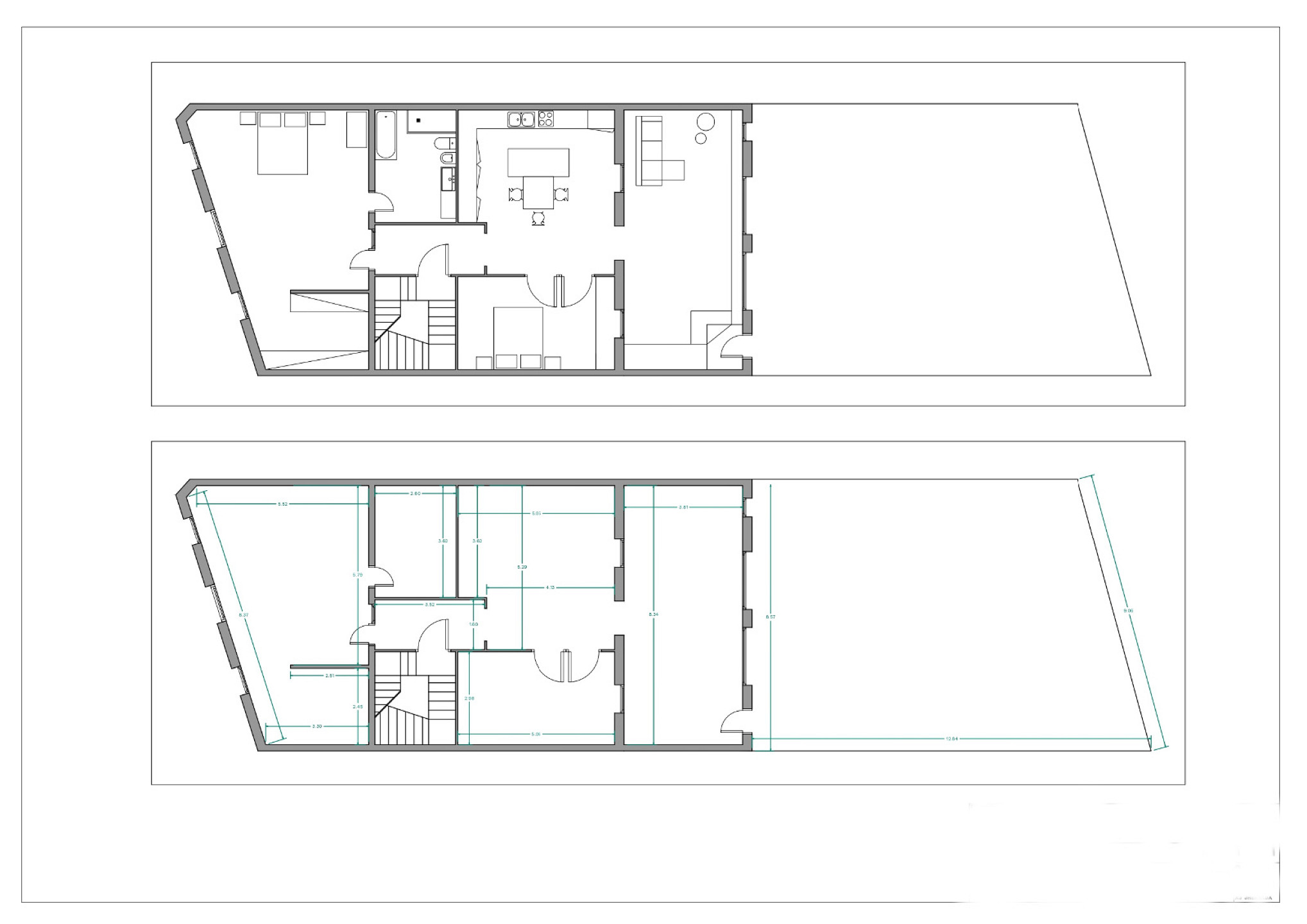
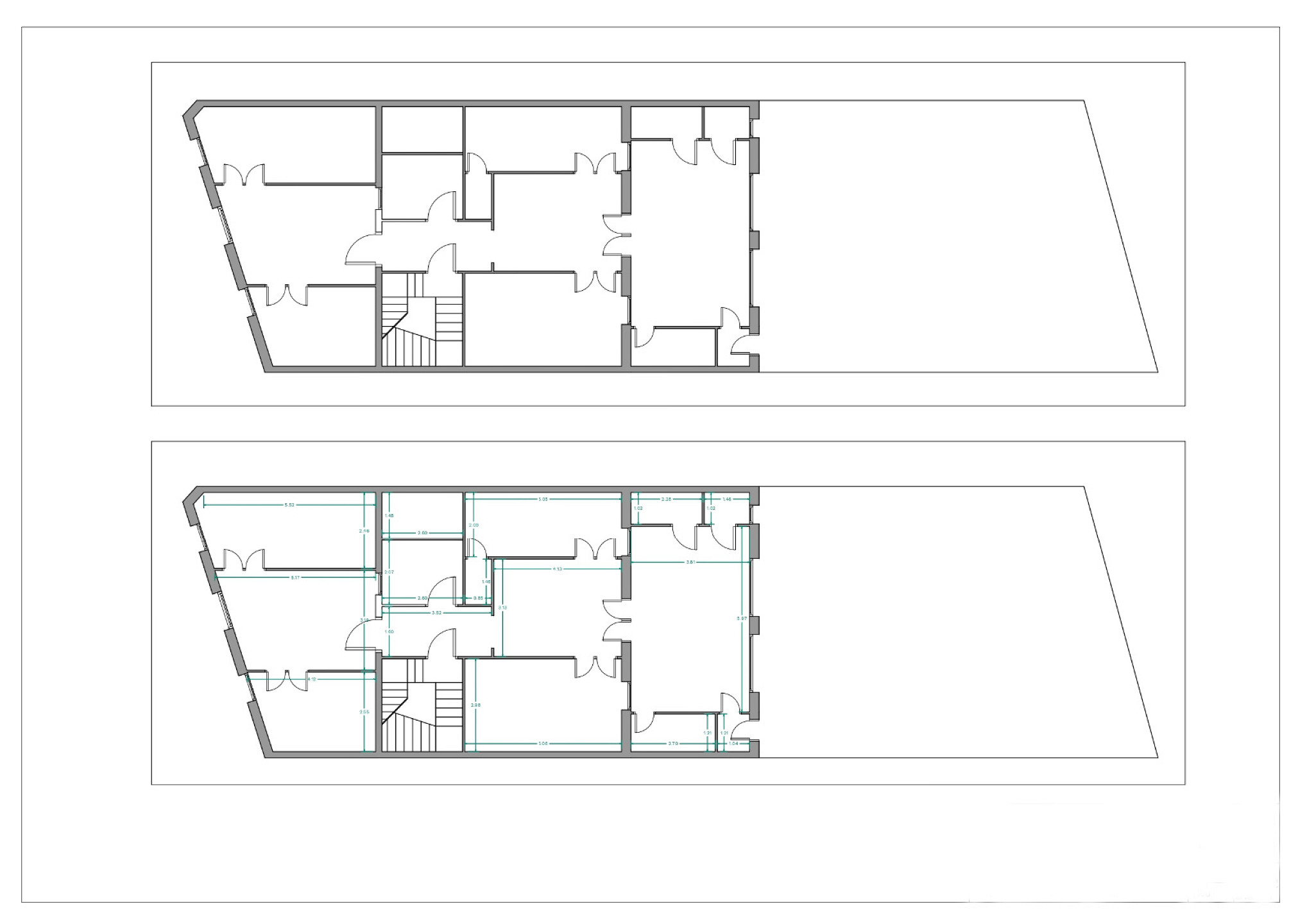
Общая площадь здания составляет около 650 м², распределённых на три уровня:

Первый уровень / коммерческое помещение (250 м²) – Пространство под полную реконструкцию. Существует проект ресторана, что делает объект идеальным для создания гастрономического проекта, бутик-ритейла или другого концептуального бизнеса в престижной локации.

Второй уровень (150 м² + терраса 110 м²) – Полностью отремонтированная жилая часть, готовая к проживанию. Имеет отдельный вход, обеспечивающий полную автономность от коммерческой зоны. Просторная терраса создаёт редкое для города приватное открытое пространство.

Третий уровень (терраса 150 м² – право надстройки) – Большая кровельная терраса с правом надстройки (derecho a vuelo), открывающим возможности для расширения, создания эксклюзивного rooftop-пространства или дополнительного строительства.

Сочетание функций делает объект особенно гибким с инвестиционной точки зрения: собственный бизнес с проживанием, арендный актив с разными потоками дохода или создание знакового многофункционального проекта.

Расположение рядом с одним из ключевых деловых и торговых узлов Барселоны обеспечивает отличную транспортную доступность, постоянный поток клиентов и стабильную ценность в долгосрочной перспективе.

Удобства

Терраса
Центральное отопление
Сигнализация

Заказать просмотр

Персональный показ объекта в удобное для вас время

Эксклюзивный сервис

01 Персональный менеджер на протяжении всей сделки
02 Юридическое сопровождение покупки
03 Помощь в получении ипотеки и оформлении документов

Похожие предложения

Промышленный склад с арендатором на продажу — стратегическое расположение в индустриальной зоне провинции Барселоны

Провинция Барселоны

2 200 000€

Коммерческая
Санта-Маргарида-и-эльс-Монжос
Ресторан на продажу с арендатором и лицензией C3 в историческом центре Барселоны

Провинция Барселоны

850 000€

Коммерческая
Барселона
Коммерческое помещение с арендатором на продажу в районе Побленоу, Барселона